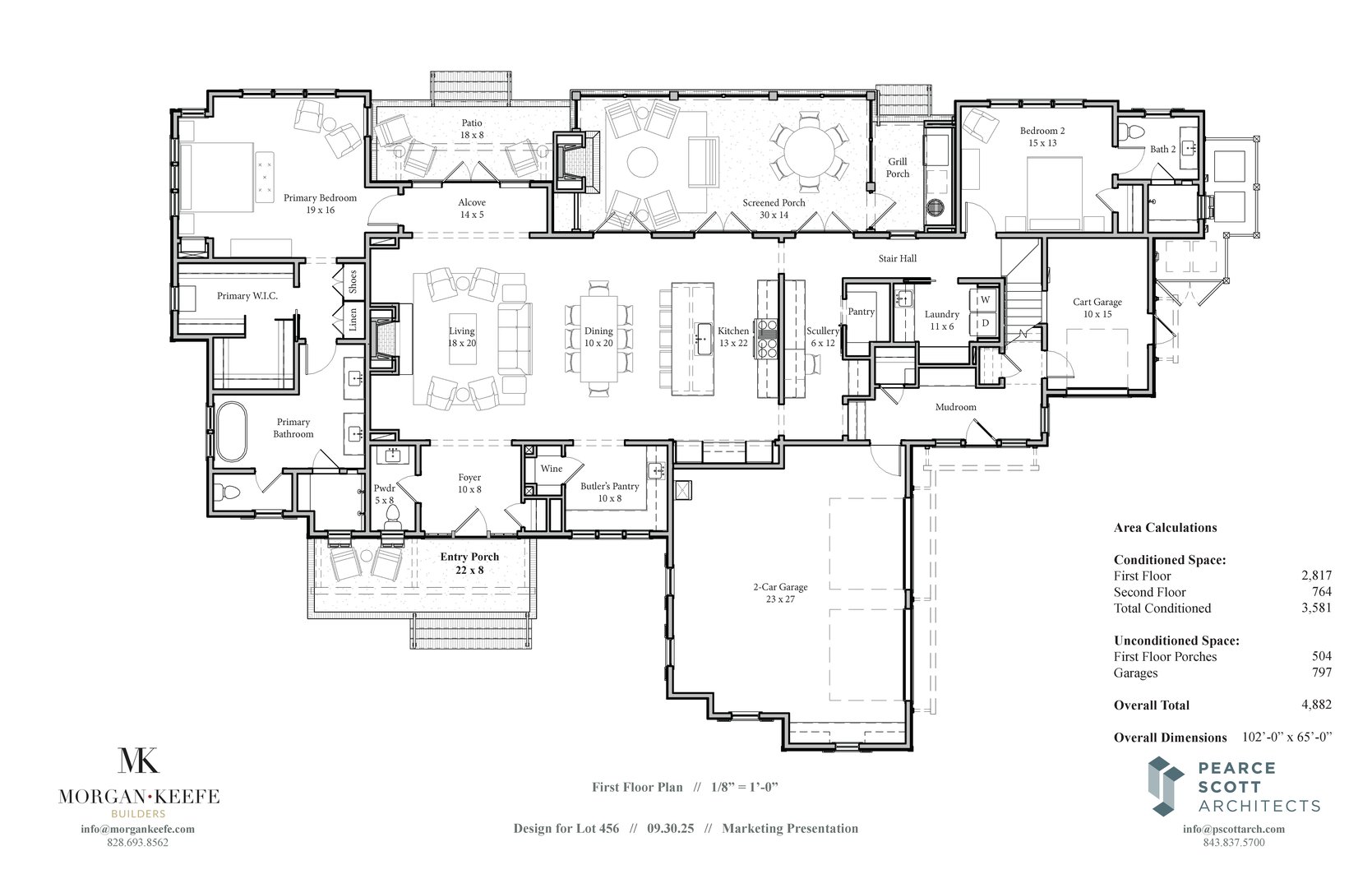
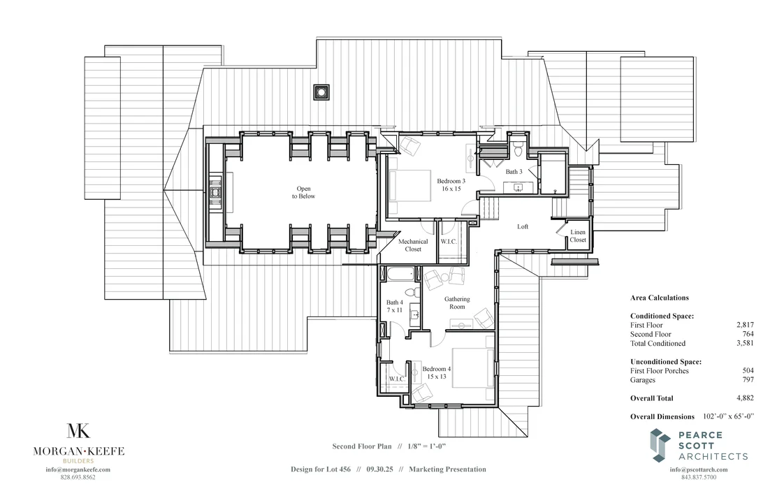
The Terrene
The Terrene on Emerald Necklace Dr
by Pearce Scott Architects
- Total Heated: 3,581 sq. ft.
- 2 levels
- 2 bay garage
- Open-concept living area
Designed through a collaborative effort between Pearce Scott Architects and Morgan-Keefe Builders, this mountain home design at The Ramble at Biltmore Forest showcases classic proportions, cedar shake siding, a standing-seam metal roof, and inviting covered porches that connect you to the surrounding landscape. A scullery and multiple pantries behind the open-concept kitchen/living/dining make seamless and functional storage spaces. Originally created for 133 Emerald Necklace Drive, this versatile design can be adapted for other home sites. See the Ramble lot specs here.
Home Plan Gallery
Next Steps
For detailed build-out pricing based on your lot and location
For more information on this and other plans





