The Hearthwood
The Hearthwood
by Pearce Scott Architects
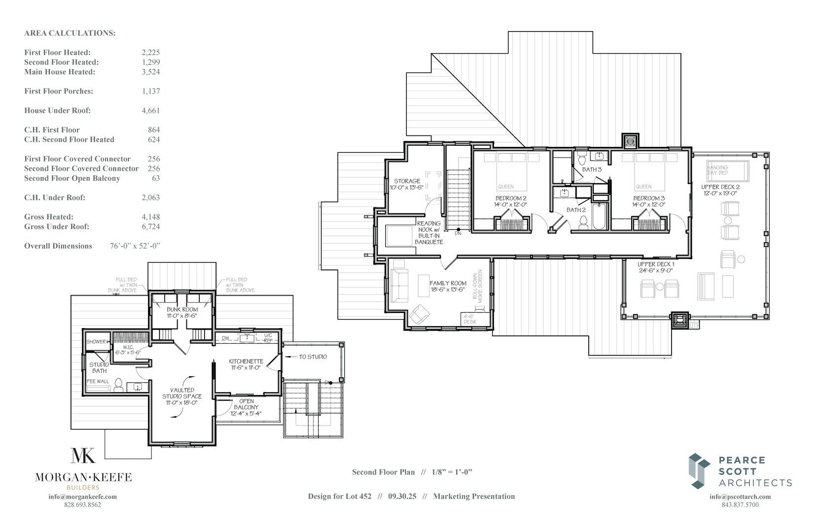
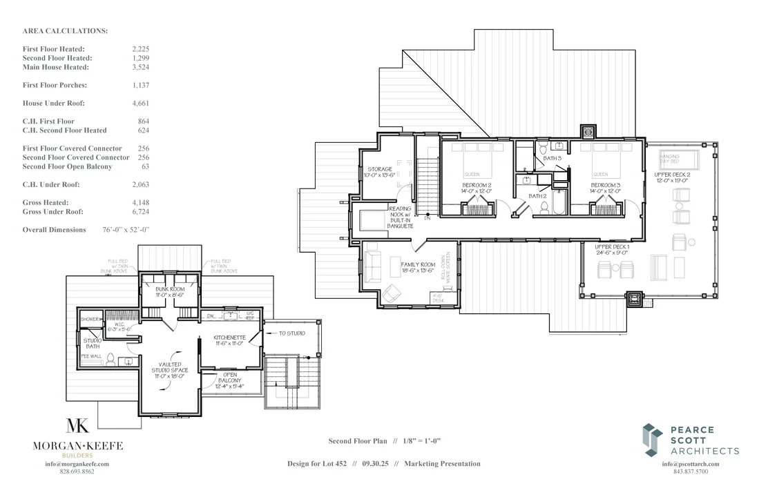
- Total Heated: 4,148 sq. ft.
- 2 levels
- Garage
- Porches
Designed by Pearce Scott Architects and built by Morgan-Keefe Builders, this mountain home plan blends timeless architecture with elevated craftsmanship. Natural stone and siding help blend into wooded surroundings. Covered porches, screened in areas, a standing-seam metal roof, and layered roof lines create a welcoming exterior with spacious nooks for gathering. Originally designed for 315 Cobbs Hill Court in The Ramble at Biltmore Forest, this versatile home plan can be adapted to other home sites while maintaining its signature mountain character. See the Ramble lot specs here.
Home Plan Gallery
Next Steps
For detailed build-out pricing based on your lot and location
For more information on this and other plans





