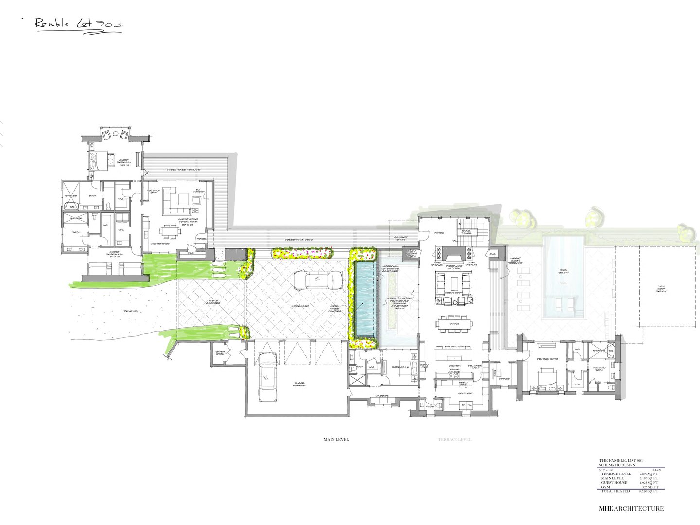
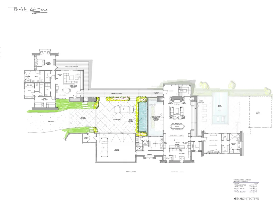
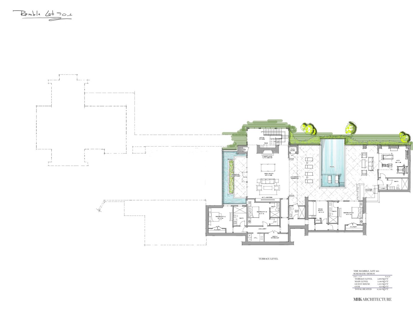
Sage Hollow
Sage Hollow Tea House
by MHK Architecture
- 8,520 total square feet
- Main level
- Guest House
- Gym
This luxury residence is designed specifically for 644 Tea House Drive, in The Ramble at Biltmore Forest. A special showcase between Morgan-Keefe Builders and MHK Architecture of refined mountain architecture with respect for the natural landscape, the plans can be adapted for other home sites beyond lot 901. This design features highlights such as a courtyard-centered layout, natural stone and barn wood exteriors, multiple terraces, and a resort-style pool. Carefully integrated into the existing landscape, the home reflects a shared commitment to craftsmanship and architectural integrity between homeowner, community, and all building partners. See 644 Tea House Drive lot specs here.
Home Plan Gallery
Next Steps
For detailed build-out pricing based on your lot and location
For more information on this and other plans





