Jasmine Glen
Jasmine Glen Tea House
by MHK Architecture
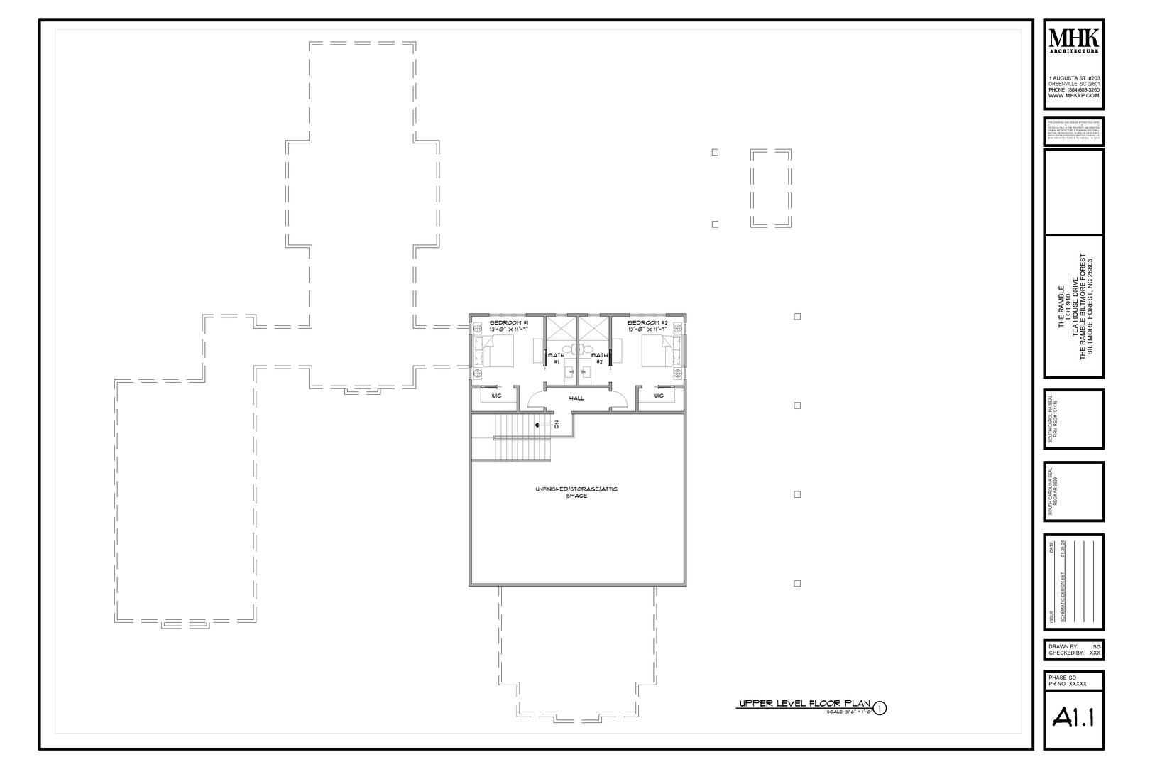
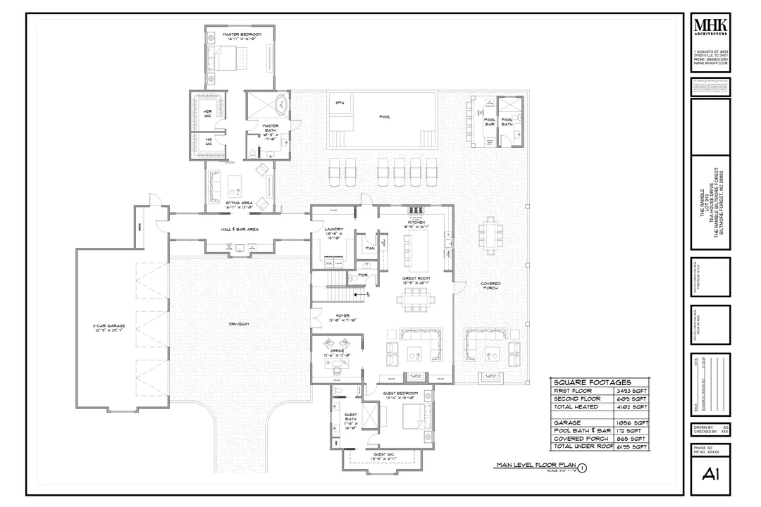
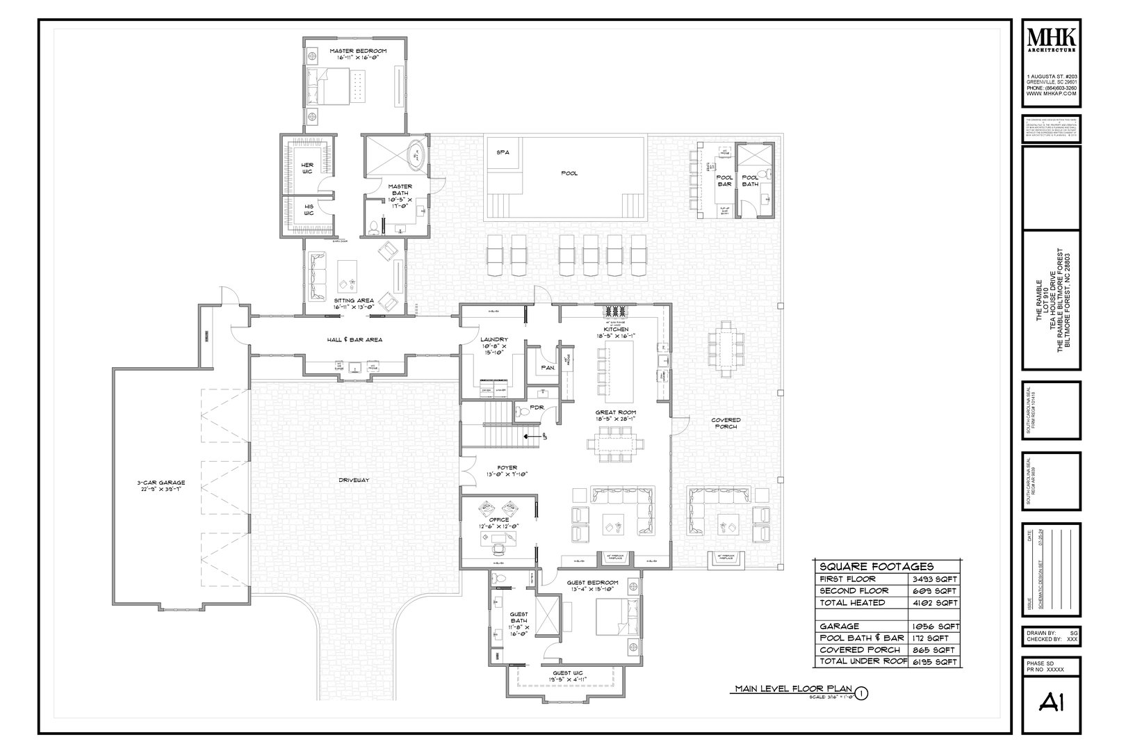
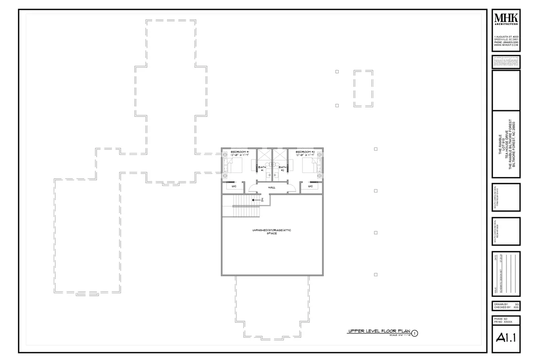
- 4,102 total square feet (heated)
- 2 levels
- Garage
- Pool
The Jasmine Glen home plan was created for 735 Tea House Drive in The Ramble at Biltmore Forest. This home plan is a collaboration between Morgan-Keefe Builders and MHK Architecture, designed for Morgan-Keefe's attentive eye in construction. Although originally intended for a specific lot, these home plans can be adapted to fit other home sites. Steep, swooping gabled roof lines, light stucco exteriors, and a warm wood shingled roof clad the exterior in a french country meets mountain modern sensibility. A welcoming courtyard entry inspires elevated living while extensive pool, pool house, outdoor living spaces make for natural gatherings. See original Ramble lot specs here.
Home Plan Gallery
Next Steps
For detailed build-out pricing based on your lot and location
For more information on this and other plans





